ID CP2748641

Apartament 3 camere - Bucatarie Separata

ID CP2748641

165,000 €

Apartament cu 3 camere de vânzare
Tomis Plus, Constanta
80.23 mp
2025

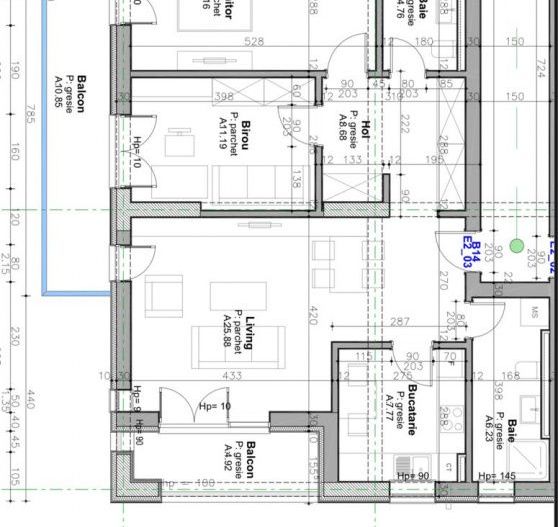
Apartament 3 camere, constructie noua, cu compartimentare eficienta si bucatarie separata.

Zona de zi si zona de noapte sunt bine delimitate, oferind functionalitate si organizare in utilizarea zilnica.

Dispune de 2 bai spatioase, un avantaj clar pentru o familie sau pentru un stil de viata bine structurat.

Locul de parcare subteran nu este inclus in pret.

Prima poza este doar cu titlu informativ.

Potrivit pentru cei care cauta un apartament nou, bine gandit, cu spatii corect dimensionate si utilizare practica.

Pentru detalii si rezervare, Suna Acum

Citește mai mult

  • Tip apartament
    Apartament
  • Compartimentare
    Decomandat
  • Număr camere
    3
  • Dormitoare
    2
  • Număr bucătării
    1
  • Număr băi
    2
  • Etaj
    2
  • Suprafață utilă
    80.23 mp
  • Suprafață totală
    96 mp
  • Disponibilitate
    Imediat
  • Confort
    1
  • Stare interior
    Nou
  • Anul finisării
    2025
  • Număr balcoane
    2
  • Număr locuri parcare
    1
  • Imobil
    Bloc de apart.
  • Stadiu construcție
    Finalizată
  • An construcție
    2025
  • Construcție nouă
    Da
  • La revânzare
    Da
  • Tip construcție
    BCA
  • Număr etaje clădire
    8

Facilități

Apă
Boxă la subsol
Bucătărie închisă
Canalizare
Centrală proprie
Curent
Curte comună
Faianță
Ferestre PVC
Gaz
Gresie
Încălzire prin pardoseală
Interfon
Izolație exterioară
Lift
Loc de joacă copii
Mijloace de transport în comun
Nemobilat
Parchet
Ușă intrare metal
Uși interior lemn
Vedere spre lac
Videointerfon
Vopsea lavabilă
Laurențiu Vințeanu - Elite Exclusiv
Laurențiu Vințeanu
Real Estate Agent

0740.096.381


Solicită chiar acum o vizionare
Nume
Telefon
Email
Sună acum Solicită vizionare
Necesare:

Site-ul nu poate funcționa corect fără aceste cookie-uri. Vezi cookie-urile

Statistică:

Strângem statistici anonime despre voi, vizitatorii unici, pentru a vă îmbunătăți experiența dumneavoastră. Vezi cookie-urile

Marketing:

Pentru a ne promova mai eficient serviciile noastre, folosim cookies pentru a vă identifica și a vă oferi proprietăți și servicii personalizate. Vezi cookie-urile

Acest site folosește cookies, află detalii. Alege ce tipuri de cookies dorești să permitem: