ID CP2748347

INEL II - COMPLEX PRIMO RESIDENCE - Apartament cu 2 camere situat la etajul 1.

ID CP2748347

127,900 € + 21% TVA

Apartament cu 2 camere de vânzare
Inel II, Constanta
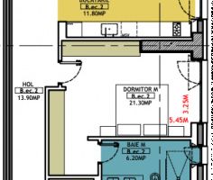
66.3 mp
2024

Ideal pentru cupluri sau familii tinere, acest apartament cu 2 camere din Complex Primo Residence îmbină perfect confortul modern cu o locație excelentă în Zona Inel II.

🏡 Detalii esențiale:

• 2 camere luminoase, bine compartimentate, care oferă un spațiu confortabil și primitor.

• Situat într-un bloc nou, construit cu finisaje premium și atenție la detalii.

• Dotări complete: centrală proprie, ferestre termopan, bucătărie practică și modernă.

• Confort și siguranță: lift modern, interfon și acces controlat.

📍 Avantajele locației:

• Zona Inel II – aproape de școli, grădinițe, magazine, mijloace de transport public și spații de relaxare.

• Acces rapid către toate zonele importante din oraș.

Acest apartament este soluția perfectă pentru cei care caută un cămin modern și funcțional, într-o zonă liniștită și bine conectată.

Prețul afișat nu conține TVA!!!

📞 Contactează-ne acum pentru mai multe detalii sau pentru a programa o vizionare! Locuința ta perfectă te așteaptă!

Citește mai mult

  • Tip apartament
    Apartament
  • Compartimentare
    Semidecomandat
  • Număr camere
    2
  • Dormitoare
    1
  • Număr bucătării
    1
  • Număr băi
    1
  • Geam la baie
    Da
  • Etaj
    1
  • Suprafață utilă
    66.3 mp
  • Suprafață construită
    79.9 mp
  • Suprafață totală
    66.3 mp
  • Disponibilitate
    Imediat
  • Orientare
    Sud
  • Confort
    1
  • Stare interior
    Finisat modern
  • Număr balcoane
    1
  • Imobil
    Bloc de apart.
  • Stadiu construcție
    Finalizată
  • An construcție
    2024
  • Tip construcție
    BCA
  • Număr etaje clădire
    4
  • Număr subsoluri
    1
  • Clasă Energetică
    A

Facilități

Aer condiționat
Apă
Apometre
Calorifere
Canalizare
Centrală proprie
Contor gaz
Curent
Curte comună
Faianță
Ferestre PVC
Gaz
Geamuri termopan
Gresie
Iluminat stradal
Interfon
Izolație exterioară
Lift
Mijloace de transport în comun
Nemobilat
Parchet
Străzi asfaltate
Supraveghere video
Ușă intrare metal
Uși interior lemn
Vedere spre oraș
Vopsea lavabilă
Gabriela Vințeanu - Elite Exclusiv
Gabriela Vințeanu
Sales Manager

0770.975.187


Solicită chiar acum o vizionare
Nume
Telefon
Email
Sună acum Solicită vizionare
Necesare:

Site-ul nu poate funcționa corect fără aceste cookie-uri. Vezi cookie-urile

Statistică:

Strângem statistici anonime despre voi, vizitatorii unici, pentru a vă îmbunătăți experiența dumneavoastră. Vezi cookie-urile

Marketing:

Pentru a ne promova mai eficient serviciile noastre, folosim cookies pentru a vă identifica și a vă oferi proprietăți și servicii personalizate. Vezi cookie-urile

Acest site folosește cookies, află detalii. Alege ce tipuri de cookies dorești să permitem: